- Главная
- Продукция
- Калориферы КСк
- Калориферы КПСк
- Теплообменники
- Воздухонагреватели водяные ВНВ113
- Воздухонагреватели паровые ВНП113
- Воздухонагреватели водяные ВНВ123
- Воздухонагреватели паровые ВНП123
- Воздухонагреватели ВНВ113МС
- Воздухонагреватели ВНВ113МБ
- Воздухонагреватели ВНП113ФС
- Воздухонагреватели ВНП113ФБ
- Калориферы (маслоохладители) КМ5 и КМ6
- Калориферы энергетические КПВ3 и КПВ5
- Агрегаты АВ с теплоносителем - вода
- Агрегаты АП с теплоносителем - пар
- Агрегаты воздушно-отопительные АО2
- Вентиляторы осевые ВО-18-287
- Агрегаты воздушно-отопительные СТД
- Агрегаты воздушно-отопительные СТД-300М
- Агрегаты воздушно-отопительные АО2М
- Электрокалориферные установки ЭКОЦ
- Электроустановки воздухонагревательные УВНЭ
- Установки воздухонагревательные ВНУ
- Воздухонагреватели электрические ВНЭ
- Воздухонагреватели электрические серии ВЭ
- Тепловые завесы
- Установки воздухонагревательные электрические УВЭ
- Тепловентиляторы
- Воздухонагревательные установки типа ВУ
- Установка воздухонагревательная для сушилок УВС
- Тепловые пушки
- Инфракрасные обогреватели
- Вентиляторы дутьевые ВД и ВДН
- Дымососы центробежные Д и ДН
- Вентилятор осевой ВО-06-300
- Установки электрокалориферные СФОЦ
- Установки электрокалориферные ЭКУ
- Агрегаты вентиляционно-приточные АВП
- Радиальные вентиляторы среднего давления ВР-285-44
- Вентиляторы мельничные
- Вентиляторы дутьевые
- Дымососы
- Вентиляторы радиальные ВЦ 14-46
- Вентиляторы радиальные ВЦ 4-75
- Вентиляторы радиальные высокого давления ВР-132-30
- Калориферы
- Вентиляторы радиальные пылевые ВРП
- Вентиляторы крышные радиальные ВКР
- Дестратификаторы
- Радиальные вентиляторы низкого давления ВР-80-75
- Тепловентиляторы электрические
- Вентиляторы
- Контакты
- Таблица замены
- Доставка
- Прайс-лист
Продукция
Агрегаты вентиляционно-приточные АВП
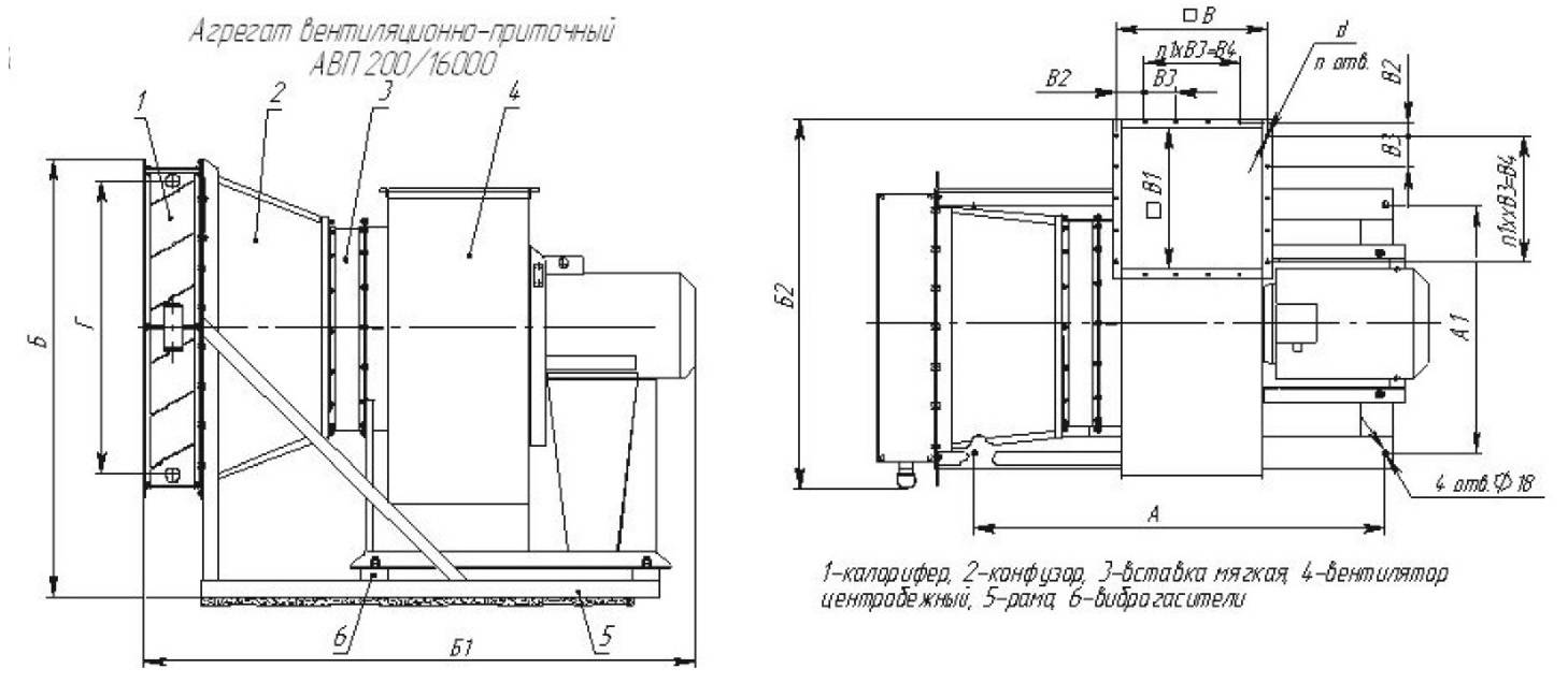
АВП 200/16000
тел: +7 (495) 974-97-11 info@tdkalorifer.ru адрес: 115280, г. Москва, ул. Ленинская Слобода, д. 23, стр. 16Агрегат вентиляционно-приточный АВП 200/16000
| Продукция - Агрегаты вентиляционно-приточные АВП |
Агрегат вентиляционно-приточный АВП 200/16000 предназначен для нагрева и перемещения воздуха в приточных камерах, воздушно-тепловых завесах, рециркуляционных установках для нагрева помещения производственного и сельскохозяйственного назначения.
ГАБАРИТНЫЕ И ПРИСОЕДИНИТЕЛЬНЫЕ РАЗМЕРЫ:
|
Размеры, мм |
Модель агрегата |
|
АВП 200/16000 |
|
|
А |
1413 |
|
А1 |
790 |
|
Б |
1395 |
|
Б1 |
1765 |
|
Б2 |
1168 |
|
В |
470 |
|
В1 |
448 |
|
В2 |
35 |
|
В3 |
100 |
|
В4 |
400 |
|
Г |
930 |
|
n, шт |
20 |
|
n1, шт |
4 |
|
d |
7 |
ТЕХНИЧЕСКИЕ ХАРАКТЕРИСТИКИ:
|
|
Наименование показателя |
Модель агрегата |
|
АВП 200/16000 |
||
|
1 |
Производительность по теплу, кВт ± 8% * |
194 |
|
2 |
Производительность по воздуху, м3/ч, не менее |
16000 |
|
3 |
Установочная мощность электродвигателя, кВт |
7,5 |
|
4 |
Давление, создаваемое агрегатом, Па |
1050 |
|
5 |
Род тока |
переменный |
|
6 |
Частота тока, Гц ** |
50 |
|
7 |
Напряжение, В ** |
380 |
|
8 |
Масса, не более, кг |
400 |
|
9 |
Калорифер |
2хКСк 4-8 |
|
10 |
Вентиялтор |
ВЦ 14-46-6,3 N=7,5кВт n=730 об/мин |
ПРИМЕЧАНИЕ:
* Производительность по теплу определяется при следующих параметрах теплообменивающихся сред:
- температура воды на входе, оС +150
- температура воды на выходе, оС +70
- температура воздуха на выходе, оС +16
** значения показателей являются справочными.
Агрегат вентиляционно-приточный АВП 200/16000
| Следующая > |
|---|

